Be a part of history
Naming opportunities at the Robson Pass Hut
Mount Robson is calling – and you have the opportunity to be part of its legacy.
The Alpine Club of Canada boasts the largest network of backcountry huts in all of North America. They are what bring a lot of people to the Club for the first time, and when you’ve had your first magical night in one of our cozy refuges nestled amongst the most stunning scenery in the world, you will no doubt want to do it again and again.
Thanks to generous donors and the dedicated efforts of many passionate people, the Robson Pass (Byron Caldwell) Hut is almost complete and we’re proud to be offering naming opportunities for its key features. These features comprise the unique hut experience, from cozy bunk beds, to the breathtaking viewing deck. Your support through naming opportunities will help close the remaining fundraising gap and make the Robson Pass Hut a reality.
We have kept you informed for every step of the way – so below, you’ll find the latest photos of the build, along with inspiration for your naming rights.
Legacy Features
($50,000–$150,000)
- Viewing deck – $150,000
- Kitchen area – $50,000
- Second-floor foyer – $50,000
Signature Spaces
($10,000–$25,000)
- Bedrooms (2) – $25,000 each
- Dining table – $15,000
- South-facing windows (1 sold, 2 left) – $10,000 each
Essential Elements
($5,000–$10,000)
- Bunk beds (6) – $5,000 each
- Ski racks (3) – $5,000 each
- Benches (3) – $5,000 each
- Outhouse – $10,000
- Power Room – $10,000
- West-facing windows (1 sold, 1 left) – $5,000 each
Please note: limited quantities available. Your donation permits you naming rights for ten years.
See below for photos, videos, and floor plans.
Hut exterior
Exterior north and west-facing sides.
Exterior south and east-facing sides. The viewing deck is on south side.
Second floor
The green dots mark the windows that are available for naming. The yellow dots highlight the remaining naming opportunities on offer and the dots mark the suggested plaque location. The locations of the plaques are open to discussion. The “Donor wall” is where all major donors will be named on a plaque.
Viewing deck
$150,000
Approaching the viewing deck from the main entrance on the upper floor – Rearguard Mountain in view.
The view looking east – Tatai Ridge in view.
The view facing south – Rearguard Mountain and Mount Robson in view.
Kitchen and dining
Kitchen Area – $50,000
Dining Table – $15,000
Benches (2 for dining, 1 in foyer) – $5,000 each
South-Facing Windows (2) – $10,000 each
West-Facing Windows (1) – $5,000 each
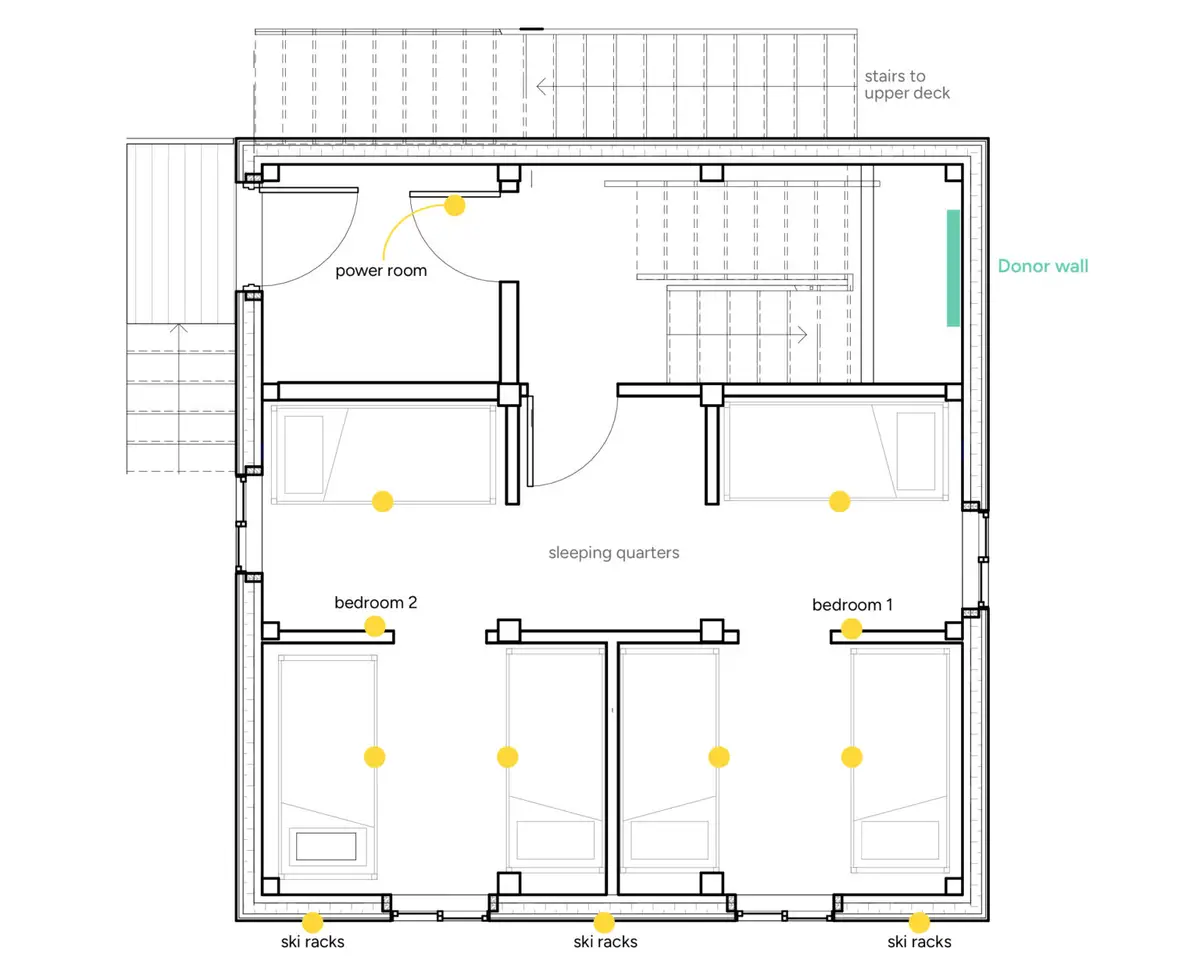
First floor
The yellow dots highlight the naming opportunities on offer and their suggested plaque location. The locations of the plaques are open to discussion. The “Donor wall” is where all major donors will be named on a plaque.
Bedrooms and beds
Bedrooms (2) – $25,000 each
Bunk Beds (6) – $5,000 each
The ground floor sleeping quarters before interior walls were installed. Now, from this angle, you would be looking at the walls of the two bedrooms.
Bedroom one of two in progress.
Power Room
$10,000
This space houses the advanced systems that keep the hut running. Your name on the Power Room door will mark your role in powering adventures for years to come.
Outhouse
$10,000
Arguably, the feature that many adventurers are happiest to see! Our suggestion is that the name plaque be installed on the exterior wall between the two doors.
Ski racks
$5,000 each (three available)
The exterior ski rack locations have not been finalised, but have been visualised in these renderings.
Secure your legacy
Name a space and create a lasting legacy in one of Canada’s most iconic backcountry destinations.
Email: [email protected] | Call: (403) 679-3200
Every dollar doubled
Don’t forget – your donation is matched until December 31!
Thanks to a generous matching gift from the Sarjeant family, every dollar you give toward a named area will be matched dollar for dollar, up to $200,000.
That means your contribution to secure a naming opportunity not only creates a lasting legacy in the Robson Pass Hut—it also goes twice as far in helping us complete this incredible project.



